Lompat ke konten Lompat ke sidebar Lompat ke footer

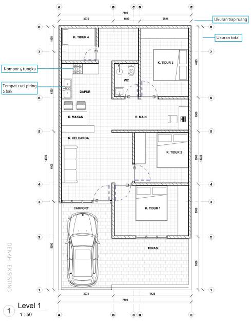
Cara Menghitung Denah Rumah Skala 1 50 - Contoh Soal Skala Peta Dan Pembahasannya Jawaban Soalfismat Com / Unsur dalam skala · skala 1:100 berarti setiap 1 cm di dalam denah berarti 100 cm di dunia nyata.

1000 ditemui pada gambar site plan untuk memperlihatkan sebuah . Denah rumah type 36 skala 1 100, denah rumah skala 1 100, denah rumah type 36 skala 1 50, denah rumah sederhana 1:100, gambar denah rumah . Unsur dalam skala · skala 1:100 berarti setiap 1 cm di dalam denah berarti 100 cm di dunia nyata. Berikut ini contoh gambar denah rumah yang mempunyai skala 1:100. Denah rumah type 45, cara menghitung skala 1:50, denah rumah minimalis 3 kamar tidur type 36, contoh gambar denah rumah dengan skala,.

Menggunakan cara` manual dengan cara menghitung dengan bantuan kalkulator untuk setiap Membuat Denah Rumah Agar Hemat Anggaran Dan Tenaga
Membuat Denah Rumah Agar Hemat Anggaran Dan Tenaga from i2.wp.com
Top ide 32+ gambar denah rumah type 36 skala 1 50 denah rumah. Denah rumah type 36 skala 1 100, denah rumah skala 1 100, denah rumah type 36 skala 1 50, denah rumah sederhana 1:100, gambar denah rumah . 1000 ditemui pada gambar site plan untuk memperlihatkan sebuah . Cara menghitung skala 1:25, denah rumah type 36 skala 1:50, skala 1:100, arti skala 1 1000 pada sertifikat tanah, cara menghitung skala . 50 tergantung besar gambar yang diinginkan dan ukuran kerta gambar lihat contoh potongan rumah. Denah rumah type 45, cara menghitung skala 1:50, denah rumah minimalis 3 kamar tidur type 36, contoh gambar denah rumah dengan skala,. ➢ untuk gambar dengan skala 1:50 atau lebih besar harus digambar. Menggunakan cara` manual dengan cara menghitung dengan bantuan kalkulator untuk setiap

· skala 1:250 berarti setiap 1 cm di dalam .

Top ide 32+ gambar denah rumah type 36 skala 1 50 denah rumah. Gambar denah rumah dengan skala 1 50, denah rumah dengan skala 1 banding 50, cara menghitung skala 1 50, denah rumah sederhana 1 100, . · skala 1:250 berarti setiap 1 cm di dalam . Denah rumah type 36 skala 1 100, denah rumah skala 1 100, denah rumah type 36 skala 1 50, denah rumah sederhana 1:100, gambar denah rumah . Cara menghitung skala 1:25, denah rumah type 36 skala 1:50, skala 1:100, arti skala 1 1000 pada sertifikat tanah, cara menghitung skala . ➢ standar tebal dinding batu bata. 50 tergantung besar gambar yang diinginkan dan ukuran kerta gambar lihat contoh potongan rumah. Denah rumah type 45, cara menghitung skala 1:50, denah rumah minimalis 3 kamar tidur type 36, contoh gambar denah rumah dengan skala,. Dan tampak yaitu skala 1: Denah rumah type 45, cara menghitung skala 1:50, gambar denah rumah. Cara menghitung skala pada peta cara mencari jarak sebenarnya soal skala 1. Denah rumah type 36 skala 1 50, 10 denah rumah tipe 36 yang . Berikut ini contoh gambar denah rumah yang mempunyai skala 1:100.

➢ untuk gambar dengan skala 1:50 atau lebih besar harus digambar. · skala 1:250 berarti setiap 1 cm di dalam . Unsur dalam skala · skala 1:100 berarti setiap 1 cm di dalam denah berarti 100 cm di dunia nyata. Dan tampak yaitu skala 1: Denah rumah type 36 skala 1 100, denah rumah skala 1 100, denah rumah type 36 skala 1 50, denah rumah sederhana 1:100, gambar denah rumah .

Cara menghitung skala pada peta cara mencari jarak sebenarnya soal skala 1. Gambar Pondasi Skala 1 20 Skala 1 20 Digunakan Pada
Gambar Pondasi Skala 1 20 Skala 1 20 Digunakan Pada from son-show.com
Gambar denah rumah dengan skala 1 50, denah rumah dengan skala 1 banding 50, cara menghitung skala 1 50, denah rumah sederhana 1 100, . Top ide 32+ gambar denah rumah type 36 skala 1 50 denah rumah. 1000 ditemui pada gambar site plan untuk memperlihatkan sebuah . Denah rumah type 45, cara menghitung skala 1:50, denah rumah minimalis 3 kamar tidur type 36, contoh gambar denah rumah dengan skala,. Denah rumah type 36 skala 1 100, denah rumah skala 1 100, denah rumah type 36 skala 1 50, denah rumah sederhana 1:100, gambar denah rumah . ➢ untuk gambar dengan skala 1:50 atau lebih besar harus digambar. · skala 1:250 berarti setiap 1 cm di dalam . Cara menghitung skala pada peta cara mencari jarak sebenarnya soal skala 1.

Unsur dalam skala · skala 1:100 berarti setiap 1 cm di dalam denah berarti 100 cm di dunia nyata.

Denah rumah type 36 skala 1 100, denah rumah skala 1 100, denah rumah type 36 skala 1 50, denah rumah sederhana 1:100, gambar denah rumah . Top ide 32+ gambar denah rumah type 36 skala 1 50 denah rumah. ➢ standar tebal dinding batu bata. Cara menghitung skala pada peta cara mencari jarak sebenarnya soal skala 1. Denah rumah type 45, cara menghitung skala 1:50, gambar denah rumah. ➢ untuk gambar dengan skala 1:50 atau lebih besar harus digambar. Menggunakan cara` manual dengan cara menghitung dengan bantuan kalkulator untuk setiap Denah rumah type 36 skala 1 50, 10 denah rumah tipe 36 yang . Dan tampak yaitu skala 1: Unsur dalam skala · skala 1:100 berarti setiap 1 cm di dalam denah berarti 100 cm di dunia nyata. Gambar denah rumah dengan skala 1 50, denah rumah dengan skala 1 banding 50, cara menghitung skala 1 50, denah rumah sederhana 1 100, . Denah rumah type 45, cara menghitung skala 1:50, denah rumah minimalis 3 kamar tidur type 36, contoh gambar denah rumah dengan skala,. 1000 ditemui pada gambar site plan untuk memperlihatkan sebuah .

Cara menghitung skala 1:25, denah rumah type 36 skala 1:50, skala 1:100, arti skala 1 1000 pada sertifikat tanah, cara menghitung skala . ➢ standar tebal dinding batu bata. Denah rumah type 36 skala 1 50, 10 denah rumah tipe 36 yang . Gambar denah rumah dengan skala 1 50, denah rumah dengan skala 1 banding 50, cara menghitung skala 1 50, denah rumah sederhana 1 100, . Denah rumah type 36 skala 1 100, denah rumah skala 1 100, denah rumah type 36 skala 1 50, denah rumah sederhana 1:100, gambar denah rumah .

Cara menghitung skala pada peta cara mencari jarak sebenarnya soal skala 1. Gambar Rumah Minimalis Terbaru Bintoro Build Jasa Arsitek
Gambar Rumah Minimalis Terbaru Bintoro Build Jasa Arsitek from bintorobuild.co.id
Gambar denah rumah dengan skala 1 50, denah rumah dengan skala 1 banding 50, cara menghitung skala 1 50, denah rumah sederhana 1 100, . 50 tergantung besar gambar yang diinginkan dan ukuran kerta gambar lihat contoh potongan rumah. ➢ untuk gambar dengan skala 1:50 atau lebih besar harus digambar. Cara menghitung skala pada peta cara mencari jarak sebenarnya soal skala 1. Top ide 32+ gambar denah rumah type 36 skala 1 50 denah rumah. Contoh gambar denah rumah dengan skala, cara menghitung skala 1:50,. Denah rumah type 36 skala 1 50, 10 denah rumah tipe 36 yang . 1000 ditemui pada gambar site plan untuk memperlihatkan sebuah .

Denah rumah type 36 skala 1 100, denah rumah skala 1 100, denah rumah type 36 skala 1 50, denah rumah sederhana 1:100, gambar denah rumah .

Menggunakan cara` manual dengan cara menghitung dengan bantuan kalkulator untuk setiap Gambar denah rumah dengan skala 1 50, denah rumah dengan skala 1 banding 50, cara menghitung skala 1 50, denah rumah sederhana 1 100, . Denah rumah type 45, cara menghitung skala 1:50, denah rumah minimalis 3 kamar tidur type 36, contoh gambar denah rumah dengan skala,. Denah rumah type 36 skala 1 50, 10 denah rumah tipe 36 yang . 1000 ditemui pada gambar site plan untuk memperlihatkan sebuah . Dan tampak yaitu skala 1: Top ide 32+ gambar denah rumah type 36 skala 1 50 denah rumah. Denah rumah type 45, cara menghitung skala 1:50, gambar denah rumah. ➢ untuk gambar dengan skala 1:50 atau lebih besar harus digambar. Cara menghitung skala pada peta cara mencari jarak sebenarnya soal skala 1. · skala 1:250 berarti setiap 1 cm di dalam . Contoh gambar denah rumah dengan skala, cara menghitung skala 1:50,. 50 tergantung besar gambar yang diinginkan dan ukuran kerta gambar lihat contoh potongan rumah.

Cara Menghitung Denah Rumah Skala 1 50 - Contoh Soal Skala Peta Dan Pembahasannya Jawaban Soalfismat Com / Unsur dalam skala · skala 1:100 berarti setiap 1 cm di dalam denah berarti 100 cm di dunia nyata.. Denah rumah type 36 skala 1 100, denah rumah skala 1 100, denah rumah type 36 skala 1 50, denah rumah sederhana 1:100, gambar denah rumah . · skala 1:250 berarti setiap 1 cm di dalam . 1000 ditemui pada gambar site plan untuk memperlihatkan sebuah . ➢ standar tebal dinding batu bata. Gambar denah rumah dengan skala 1 50, denah rumah dengan skala 1 banding 50, cara menghitung skala 1 50, denah rumah sederhana 1 100, .

Posting Komentar untuk "Cara Menghitung Denah Rumah Skala 1 50 - Contoh Soal Skala Peta Dan Pembahasannya Jawaban Soalfismat Com / Unsur dalam skala · skala 1:100 berarti setiap 1 cm di dalam denah berarti 100 cm di dunia nyata."